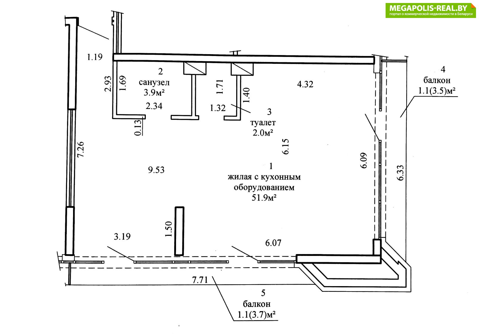
Продается квартира по адресу Жореса Алфёрова ул. д. 3, г. Минск
- Количество комнат: трехкомнатная
- Этаж: 4 этаж из 21
- Санузел: раздельный
- Планировка: новостройка
- Год постройки: 2024
Пора покупать свое жилье? Продам евро3-ку!
Как совпало:
Готовая квартира в доме 2025 г.п.;
В одном из самых продаваемых районов г. Минска;
Цена соответствует строящимся объектам у данного застройщика;
Ключи в день сделки;
Есть вопросы, звони!
Успей купить!!!
Лицензия: №02240/362 от 31.07.2018, Министерство юстиции РБ
- Регион: Минск и район
- Населенный пункт: г. Минск
- Жилой комплекс: Минск Мир
- Микрорайон: Минск Мир
- Адрес: Жореса Алфёрова ул. д. 3
- Район: Октябрьский
- Контактное лицо: Людмила
- Телефон: +375 29 626-98-61
- Телефон: +375 29 626-98-61
- Продажа квартиры


в избранное




























































































































































