Офис Улица / проспект Фабрициуса



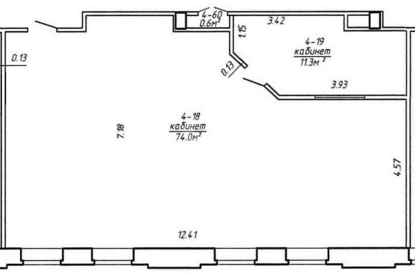
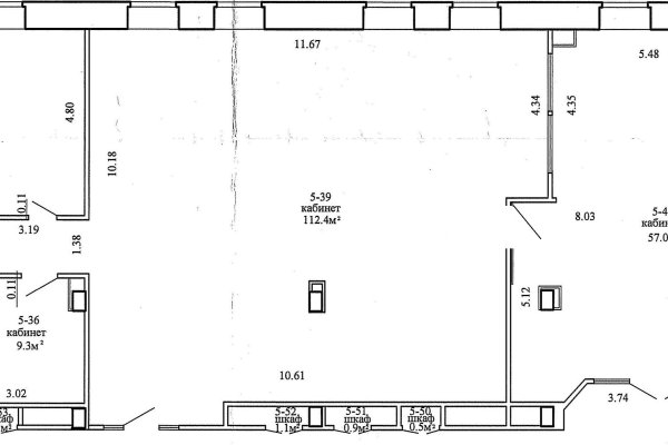
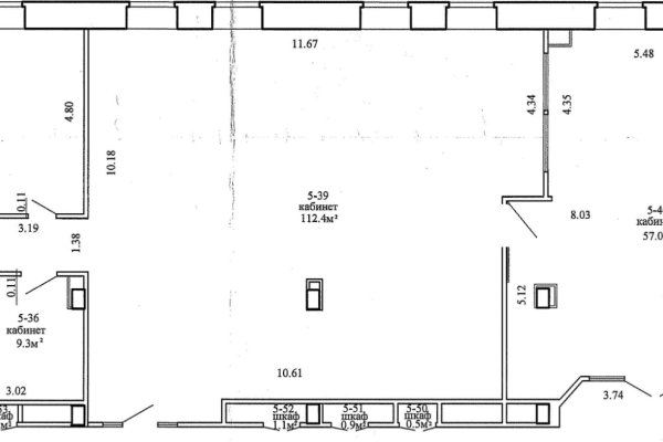
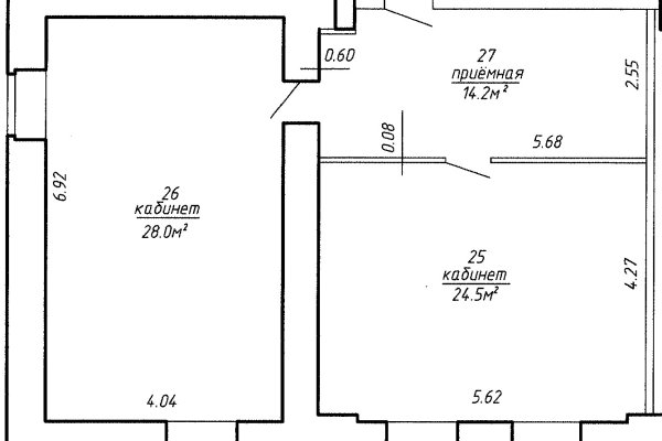
Аренда помещений разной площади от 24,9 кв.м. в центре г. Минска по адресу: Фабрициуса, 8Б, корп. 1.
Находятся на разных этажах здания.
• Площади помещений разные: 24,9; 24,9; 33,4; 39,7; 53,7; 56,6; 56,8; 61,3; 85,3; 87,2; 148,5 кв.м.
• Можно объединять несколько помещений.
• Кабинетная планировка.
• Круглосуточная охрана, электронная система управления доступом. Доступ 24/7.
• Отличное транспортное сообщение, в шаговой доступности ст.м. "Институт Культуры".
• В арендную плату включены все эксплуатационные расходы, дополнительно оплачиваются лишь коммунальные услуги.
• Арендная плата указана с учетом НДС 20%.
• Объявление размещено от собственника.





в избранное





























































































































































































































































