Офис Микрорайон Короля
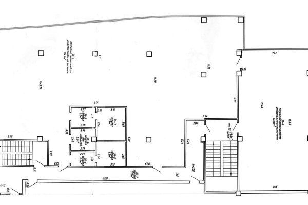
В самом сердце столицы, в шаговой доступности от станции метро "Площадь Франтишка Богушевича»", предлагаем к продаже эксклюзивный офис площадью 123,8 м2 в новом бизнес-центре. Это уникальная возможность приобрести... →
6 784 BYN / м2
2 318 $ / м2
2 000 € / м2
124 м2
841 216 BYN
$ 287 432
€ 248 000
Г. Минск, Цеткин ул., д. 24
Цеткин ул., д. 24
Агентство: АН "Фаттория"
УНП: 193625457
+375 25 532-84-21


в избранное












